District of North Vancouver
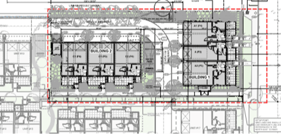
Site Plan of the proposed development at 873 Premier Street

873 Premier Street

Brody Properties has applied to develop this site. The application as submitted proposes six three-storey townhomes, with parking spaces for 13 vehicles.

Learn more about this application on our website

Site Plan for proposed 6-unit townhouse project at 873 Premier Street.

Opportunities to Engage

873 Premier Street
Closed

873 Premier Street

Share your thoughts or ask questions about this application to develop six three-storey townhomes, with parking spaces for 13 vehicles.

873 Premier Street

"I am available to help answer your questions about this proposal"
Christopher Lumsden
DNV Planner

Important Dates

28
Apr 2025

Virtual public information meeting

Between April 28 and May 9, 2025, you can ask the applicant questions about this proposal, and share your thoughts with them.

Supporting Documents

Contact Us

Follow Us