East Greenwich, RI
Town Council approves bid award to Narragansett Improvement Company
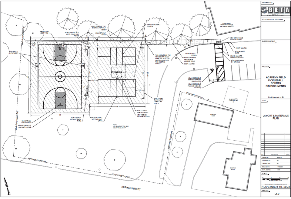
Academy Field Pickleball Courts and Basketball Court

Town Council approves bid award to Narragansett Improvement Company

Town Awards Bid to Narragansett Improvement Company for New Pickleball Courts and Basketball Court Reconstruction

The Community Services & Parks Department is pleased to announce the awarding of a significant construction bid to Narragansett Improvement Company, a well known and respected construction firm based at 223 Allens Ave, Providence, RI 02903. This ambitious project involves the construction of two state-of-the-art pickleball courts at the popular Academy Field and the comprehensive reconstruction of the existing basketball court, which will include the addition of two side hoops.

Narragansett Improvement Company, known for its commitment to quality and community engagement, has been selected for this project due to its extensive experience and proven track record in similar construction ventures. The project aligns with the town's ongoing efforts to enhance recreational facilities and promote active lifestyles among its residents.

The new pickleball courts are set to cater to the growing popularity of the sport, providing residents with modern facilities to enjoy this engaging and social activity. Additionally, the basketball court reconstruction is aimed at revitalizing a much-loved community space, making it more versatile and accessible for players of all ages and skill levels.

"The construction of these new sports facilities is a testament to our commitment to providing high-quality recreational spaces for our community," said Andy Wade, Director of Community Services & Parks. "We are confident that Narragansett Improvement Company will deliver a project that not only meets but exceeds our expectations."

The project is scheduled to commence this Spring with is anticipated to be completed by the summer of 2024. Throughout the duration of the construction, the Town of East Greenwich and Narragansett Improvement Company will work closely to minimize any inconvenience to local residents and ensure the safety of the construction site.

For more information about this project or other Town park initiatives, please contact Andy Wade, Director of Community Services & Parks, at 401-886-8350 or awade@eastgreenwichri.com

Academy Field Pickleball Courts site plan

Stay Informed

Get notified on upcoming engagements and the latest project related news.

Follow Us