Frontier Heights Park Phase II
Frontier Heights Park Phase I was completed in 2020, this project included a new playground, walking path and parking improvements.
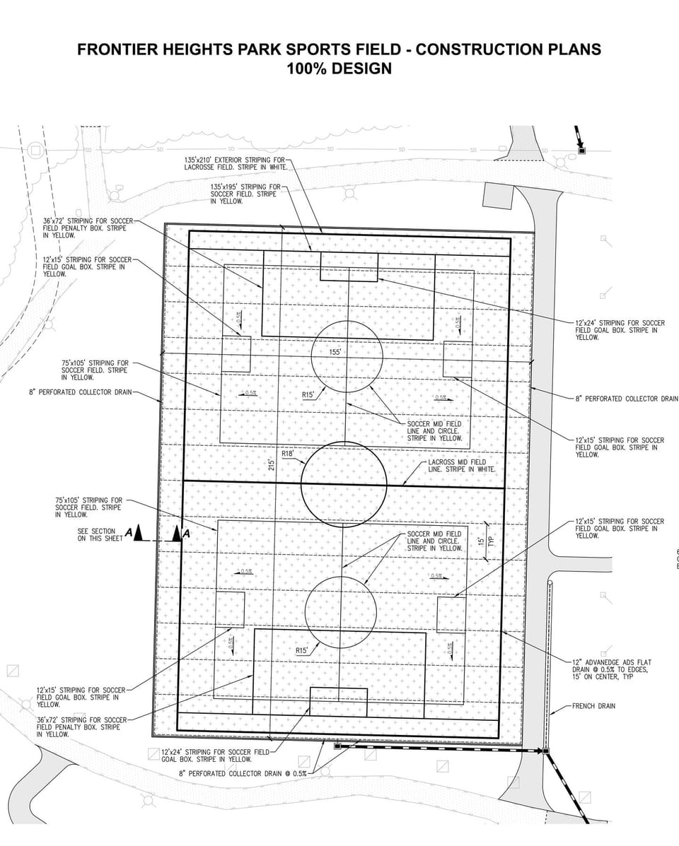
Phase II includes installation of:
- A synthetic turf U10/ U11 soccer and U6-U10 lacrosse multi-sport field
- Four pickleball courts
- Sensory garden
- Outdoor fitness stations
- Additional parking
Select the March 30, 2025 project update to view a complete plan set.
The start date of this project is November, 2025 and estimated to be completed in spring, 2026.
View a larger image of the 100% design image below.
Project Contacts:
Erik Mangold, PMP
Capital Projects Manager
Phone:(425)622-9443
Email: emangold@lakestevenswa.gov
Jill Meis, BSBM, PM, CPRP
Parks Planning & Development Coordinator
Phone: (425) 622-9431
Email: jmeis@lakestevenswa.gov
Stay Informed
Get notified on upcoming engagements and the latest project related news.
Project Updates
Park Opening Delay Until Late Spring
Park Opening Delay
Construction begins; park closure starting November 2025
Construction begins; park closure starting November 2025
Construction begins October 2025
Construction expected to begin in October 2025.
Open Project Bid
Submit a construction bid
100% Construction Plans
Playfields' construction plans