Peterborough Fire & Rescue Station Project
IMPORTANT! The new Fire & Rescue Station Project has one final hurdle: Open Session is on Wednesday, May 15 and a 2/3 majority vote is required to pass a bond vote. Please mark your calendar
In May 2022, Peterborough voters overwhelmingly approved funding for the design and engineering of a new fire and ambulance station on Elm St., adjacent to the Peterborough Community Center. During approval at Town Meeting, the Town’s Select Board promised a balanced project going forward and named Seth MacLean as the project manager to help guide the process of developing a project that balances need with financial viability. Subsequently, several essential steps have been taken since May of 2022 to ensure the project aligns with both the fire service's requirements and financial feasibility. These include:
Establishing a project budget goal of no more than $12.1 million, consistent with the Select Board guidance that the Town not exceed 70% of its legal bonding capacity.
Touring existing fire stations across the state to gather insights on project delivery and design considerations from communities with similar experiences.
Holding numerous meetings with local boards, committees, and community stakeholders to understand community priorities for the project
Establishing a community-led building committee responsible for recommending professional service providers and collaborating with town staff to ensure a balanced project.
Contracting a construction management company with expertise in pre-construction services to support budgetary and programmatic goals during design development.
Contracting an architectural firm specialized in municipal projects and experienced in utilizing public input throughout design development.
The Building Committee selected SMP Architecture of Concord, NH, for their public engagement strategy and Harvey Construction for their extensive experience in public projects and pre-construction services. Both firms have been instructed that the project is not-to-exceed the $12.1 million budget cap.
Further, the public is invited to all meetings of the Building Committee. Meeting times and locations can be found here.
The public can also reach out to the Town’s project manager, Seth MacLean, DPW Director, directly by calling 603-924-8000 ex.102 or by emailing seth@peterboroughnh.gov.
We kindly encourage you to peruse the supplementary sections available on this platform to gain comprehensive insights into the project. These resources encompass past committee meeting minutes, video updates presented to the Select Board, schematic drawings, and other pertinent information that will undoubtedly enhance your understanding of this significant and important project. There is also a Q&A board that will allow you to review previously asked questions and ask your own. This site also provides a Community Feedback Board for citizens to comment on the project throughout its design phase.
Moreover, we invite you to subscribe to email updates related to this project by signing up for notifications at the bottom of this page. This will ensure you remain abreast of the latest developments and crucial updates pertaining to this initiative. Your engagement and commitment to staying informed are greatly appreciated.
Fire Station Building Committee
Mandy Sliver, Chair - Budget Committee, Town Treasurer
Carl Mabbs-Zeno, Vice Chair - Budget Committee, CIP Committee
Sarah Steinberg-Heller - Planning Board, CIP Committee
Tony Cassady - Community Power Committee
Carol Nelson - Affordable Housing Committee
Bill Taylor - Select Board member
Building Committee Minutes
Information related to the history of this project can be found on our dedicated archive webpage here
Opportunities to Engage

FAQ Board
Curious about the upcoming Peterborough Fire & Ambulance Station Building Project? Join the conversation, ask your questions and explore answers to queries posed by your fellow residents, as we together embolden our commitment towards an improved, safer Peterborough, NH.

Community Idea Board
Have a say in shaping outcomes of the Peterborough Fire & Ambulance Station Building Project!
We invite you to bring your innovative ideas about pedestrian access, public amenities, sustainability, improving the Elm Street corridor, preserving our natural resources, and more for the new Fire & Ambulance Station Building Project. We also encourage you to take a moment to vote on the suggestions of fellow residents.
Stay Informed
Get notified on upcoming engagements and the latest project related news.

Project Phases
Town Meeting - Warrant for $2M Approved for Design, Engineering, & Construction
Select Board hold a Workshop dedicated to the Fire & Ambulance Station Building Project
Goal Setting Meeting for Budget Committee & Finance Department
Project Updates
Open Session - Don't Forget!
Open Session is coming - don't forget to join us!
Budget Committee Meeting Tonight
New Fire and Rescue Station Project to be Discussed at Tonight's Budget Meeting
Virtual Building Design Session is live
Did you miss the Building Design Session? Watch the recording and give us your feedback virtually!
Last Call for Feedback on Conceptual Design!
Reminder: Last Call for Feedback on Conceptual Design!
Important Dates
Public Listening Sessions - Conceptual Site Design
Two sessions will be held in the 1833 Room on the same day - 3pm & 6pm
Join the Building Committee, SMP Architects, and Harvey Construction for a public listening session related to the conceptual site design. Learn more about the project’s goals and objectives directly from the architects, and share your impressions and ideas with the team directly.
If you've missed these sessions, we encourage you to review a recording of a session and share your feedback here.
Public Listening Sessions - Conceptual Site Design
Two sessions will be held in the 1833 Room on the same day - 3pm & 6pm
Join the Building Committee, SMP Architects, and Harvey Construction for a public listening session related to the conceptual site design. Learn more about the project’s goals and objectives directly from the architects, and share your impressions and ideas with the team directly.
If you've missed these sessions, we encourage you to review a recording of a session and share your feedback here.
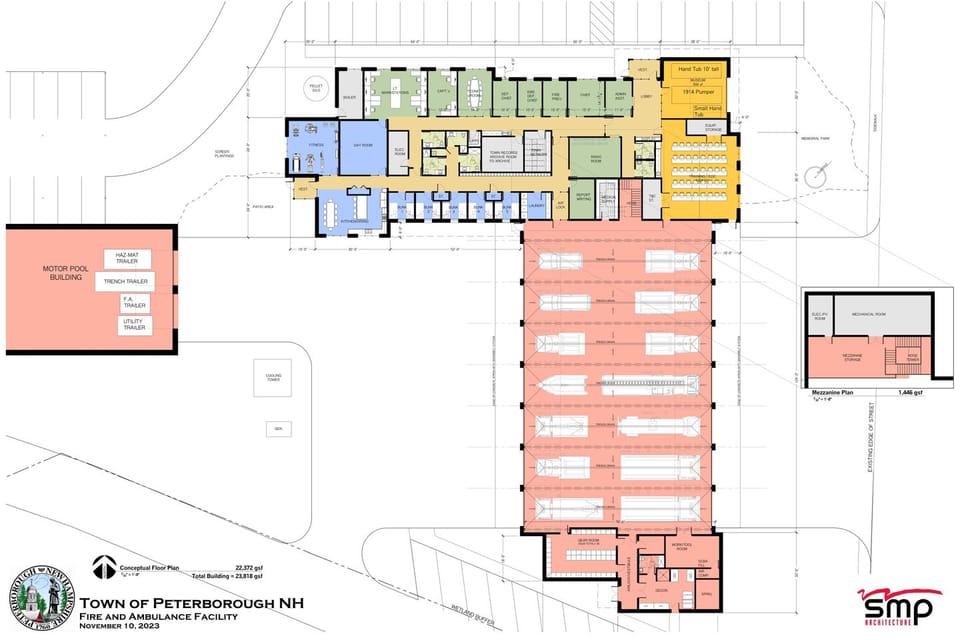
Listening Session - Conceptual Building Design
Join the Building Committee, SMP Architects, and Harvey Construction for a public listening session related to the conceptual building design. Learn more about the project’s goals and objectives directly from the architects, and share your impressions and ideas with the team directly.
CIP Meeting for Fire Department
Scheduled for Thursday, November 2, 2023 at 1 PM in the Select Board meeting room. This is a dedicated meeting to hearing and reviewing the Fire Department's Capital Improvement Plan (CIP) items. The new Fire & Ambulance Station Building project will be included in this presentation to the CIP Committee.
To see minutes, CIP spreadsheets, and materials submitted by Department head's, please check the CIP Committee's webpage
New Fire & Rescue Station Presentation to Budget Committee and Select Board
Scheduled for Tuesday, January 30 at 5:30 PM in the Select Board meeting room. Project manager Seth MacLean will be presenting on the status of the project which will include the preliminary building design, layout, and associated costs.
This meeting was recorded live and may be viewed here:https://video.ibm.com/channel/peterborough---our-town
Public Hearing on Annual Budget and Bond
This meeting will be held on Tuesday, March 5 at 5:30 PM in the Select Board meeting room.
While this meeting will cover the overall Town budget, it will be another opportunity to hear about the proposed costs associated with the development of the new Fire and Rescue Station. We encourage all interested parties to attend, ask questions, and share feedback.
This meeting will also be live streamed to Comcast Channel 22 or streamed here.
Meet the Architects and the Design Team
Join us on Wednesday, March 27 at 6:00 PM in the 1833 Room at the Peterborough Town Library for another open-house presentation of the project so far. This presentation will include an opportunity to ask questions, give feedback, and learn more about the design team.
Watch the recording of this event here: https://youtu.be/xQnNhN9ERug
Town Meeting - Open Session
Held on Wednesday, May 15 at 7 PM in the Upper Meeting Hall of the Peterborough Town House.